施工図
より良い建物は施工図で決まる
建物はさまざまな多数の人たちが協力して、1つの物をつくる。そこには、見栄えのいい建物・地震にも負けない建物・使い勝手が良い建物など施主と設計者と施工者の思いが必ずあります。その思いを形にするため、施工図が存在していると思います。
施工図を手掛ける会社として、より良い建物は施工図で決まるをモットーに技術の更新にも目をむけ、常に新しい情報と向き合い施工図の品質向上へ取り組んでおります。
施工図とは
建物を作る過程で、各シチュエーションに応じて作成される計画・法規・構造・施工すべてが網羅されたものづくりの説明書(図面)です。
各業種の職人さんが工事現場に持参して使用する図面になるため、建物の品質・コスト・工事工程に大きく影響のある図面です。
-
杭工事(杭伏図)

-
基礎工事(基礎伏図)

-
躯体工事(見上図)

-
天井工事(天井伏図)

-
内装仕上工事(平面詳細図)

設計図から施工図へ
基礎伏図
-

設計図(基礎伏図)
基礎(基礎梁)の位置や大きさ、高さなどを示した図面で、設計図では符号を設いて表現しています。各ピットへの出入り用の人通孔や、ピットに水を溜める釜場なども表現されています。
各基礎、基礎梁のサイズは別紙にリストがあり、サイズを確認できるようになっています。
-

施工図(基礎伏図)
設計図で記載していた符号に幅・高さ・レベルなどの情報を入れ、ピットに水勾配やピットに入るためのマンホールなどの情報も記載し。現場の鉄筋工や型枠大工が施工するために使用する図面です。
基本は複数枚の図面を見るのではなく、1枚の図面に情報が集約されています。
天井伏図
-

設計図(天井伏図)
天井を上から見下ろしたものを天井伏せといい、天井を上から見て、平面的に描いたものを天井伏図といいます。
天井の仕上げや貼り方向のほか、天井高さや照明器具、設備機器などの情報が記載されています。
-

施工図(天井伏図)
設計図の情報と施工図の平面詳細図をベースに天井仕上の割付や納まりなどを記載し、点検口と折上天井、間接照明やブラインドBOXなどの天井に取り付くものを全て記載したものです。
-

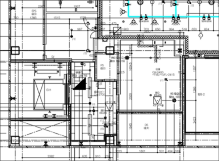
施工図(総合図、天井伏図)
施工図の天井伏図に設備施工図の情報を入れた図面です。その部屋を実際に使用するにあたり、照度が確保できているか、スプリンクラーや煙感装置などの位置が適正かを確認する図面です。
現場ではこの図面をベースに建築、設備との情報を共有して作業のロスがないようにしていくために使われています。
平面詳細図
-

設計図(平面図)
設計図とは、部屋のレイアウト、通り芯と室名が記載された図面です。壁や建具などの情報は別紙に記載されており、確認できるようになっています。
-

施工図(平面詳細図)
設計図の情報を元に、符号や寸法、建具などをより詳しく記載した図面です。
この図面で、設計者及び施主と打ち合わせを重ね、他の業種へと展開していきます。基本は複数枚の図面を見るのではなく、1枚の図面に集約されています。
-

施工図(統合図)
施工図の平面詳細図に設備施工図の情報を入れた図面です。その部屋を実際に使用するにあたり、コンセントやスイッチなど使いやすいところに設置できているか、数が足りているかなど、使い勝手を詳細に検討していく図面です。
現場ではこの図面をベースに建築・設備との情報を共有して、作業のロスがないようにしていくために使われている図面です。